Château d’eau

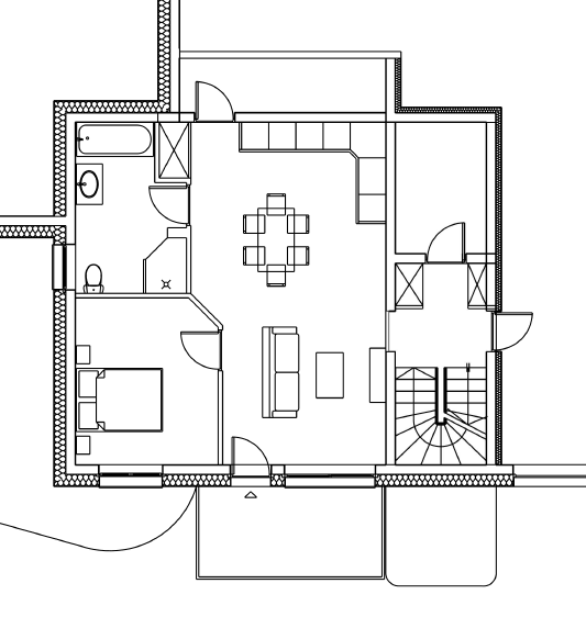
Transformation d'un T2 existant d'une maison, en suite parentale.